- Nacházíte se: Úvodní strana
- Vily
- Brno
- Fuchsův rodinný dům
Fuchsův rodinný dům
FOIBOS - 1. 6. 14:04

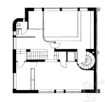
Dvoupatrový dům s železobetonovým skeletem zaujímá čtvercový půdorys a jeho hmota tvoří mírně převýšený kubus.
Dvoupatrový dům s železobetonovým skeletem zaujímá čtvercový půdorys a jeho hmota tvoří mírně převýšený kubus. Suterén vyhradil architekt hospodářskému zázemí a garáži. Přízemí a první patro ovládá průběžná patrová hala s galerií využitou jako knihovna. Součást haly tvoří dále zimní zahrada, balkon, jídelní část s navazující kuchyní a místnost pro domácí práce. Kromě knihovny zaujímá první patro kancelář s ateliérem, nejvyšší patro pak vyplňují tři ložnice, dva pokoje pro hosty, sklad, šatna a koupelna. Rovná střecha slouží jako obytná terasa. Smysl pro provozní a technickou stránku obydlí osvědčil Fuchs mimo jiné u kuchyně s nejmodernějším elektrickým a plynovým zařízením a příborníkem s oboustranným otvíráním, takže jídlo bylo možno podávat přímo do jídelního koutu. Poučil se na tzv. frankfurtské kuchyni, vytvořené německou architektkou Margarete Schütte-Lihotzky, která byla tehdy sériově vyráběna a vestavována do sociálních bytů na sídlištích ve Frankfurtu nad Mohanem. Tato maloplošná, technicky dokonale vybavená pracovní kuchyně šetřila čas a síly ženy. Vlastní dům stojí na počátku Fuchsovy zralé funkcionalistické tvorby, jež osobitě zhodnocovala příklad Le Corbusierova purismu a částečně i princip prostorového plánu Adolfa Loose prolínáním prostorů jak v horizontálním, tak vertikálním směru. Architekt výrazně přestoupil funkční stránku úkolu směrem k esteticko-emocionálnímu pojetí a k vytvoření psychicky příznivého prostředí. Význam, který přikládal umělecké složce architektury, dokládal také obraz zátiší od Emila Filly na čelní stěně haly. Fuchs tak vytvářel protiváhu koncepcím racionálního funkcionalismu, jež u vůdčího teoretika české avantgardy Karla Teigeho a jemu oddaných pražských architektů vyústily až v antiuměleckou architekturu podle hesla forma následuje vědu. /J. S.
Soutěže
Moje slavná vila
Právě jsme soutěž Moje slavná vila ukončili a vylosovali výherce. Přesto Vám nabízíme možnost nesoutěžně se podělit o zajímavé fotografie z procházek a výletů!
Míjíte na svých každodenních cestách krásné nebo zajímavé domy? Všímáte si osobitých staveb ve svém okolí? Možná, že nevznikly pod rukama světoznámých architektů, možná nezměnily dějiny bydlení. Jsou-li ale součástí "genia loci" vaší ulice, čtvrti, nebo města, zaslouží si, aby se o nich vědělo.
Nové diskuse
- Vila Gustava Deutsche
- Vila Olomouc, Na Vozovce 5
- Zajímavosti
- vila ve Velkém Oseku
- VILA SPIRO Větřní
- Pomoc pri hledani mista, kde stoji vila
- Pomoc pri hledani mista, kde stoji vila
- Kde zjistím historii vily?
- Vila Josefa Bartoně
- vily v Bohumíně
- Suchardova vila v Nové Pace
- Vila v Kloboukách u Brna
- Mužík vs. socialistická architektura
- Vila F.Grohmanna
- Ludersdorfova vila

Slavné brněnské vily







