- Nacházíte se: Úvodní strana
- Vily
- Brno
- Kudelův rodinný dům
Kudelův rodinný dům
FOIBOS - 1. 6. 14:02

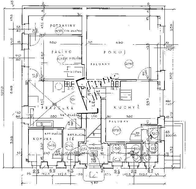
Třípodlažní dům, příklad „domu v kubusu“, je postaven na půdorysu 10,7x9,5 m s využitím svažitého pozemku.
Informace o vile
Klácelova 10 / Havlíčkova 36, čp. 145, Brno 1-Stránice
Stavebník: PhDr. Josef Kudela
Architekt: Jan Víšek
Sloh: funkcionalismus
1926 - 1927
Třípodlažní dům, příklad „domu v kubusu“, je postaven na půdorysu 10,7x9,5 m s využitím svažitého pozemku. V nejnižším podlaží se nachází zázemí domu a malý byt domovníka. Z nevelké haly za vstupními dveřmi vede přímé jednoramenné schodiště v ose domu do druhého obytného podlaží. Z malé symetrické haly se vstupuje do kuchyně, jídelny a obytné haly, jejichž propojení dovoluje průhledy napříč celým domem, čímž se prostor interiéru opticky zvětšuje. Uprostřed třetího podlaží se nachází rovněž malá hala se čtyřmi dveřmi do ložnic a pátými do koupelny. Z pokoje pána stoupá pak poslední rameno schodiště do malé krychlové půdy s východem na střechu. Styl architekta Jana Víška (1890 - 1966) se od počátku vyznačoval úsporností, střízlivostí až asketičností v souladu s autorovou zásadou, že „modernost vyjádřena je v dokonalých inženýrských stavbách jasností, čistotou, účelností, úměrností a přesvědčivou konstruktivní samozřejmostí. Nová architektura domů musí vyrůstat ze stejných předpokladů a mít tedy stejné formální vlastnosti jako dobré objekty inženýrské.“ Citovaný program z roku 1925 a jeho důsledné naplňování zajistily Víškovi vůdčí postavení mezi brněnskými představiteli racionálního funkcionalismu. Za krajním minimalismem Kudelova domu lze postřehnout pro Víška charakteristickou klasicizující tendenci, a to v latentním geometrickém řádu fasád a ve skrytých osách dispoziční skladby. Stavebník domu Josef Kudela (1886 - 1942) působil jako profesor latiny a řečtiny na Prvním slovanském gymnáziu v Brně, od roku 1937 jako jeho ředitel. Vedle pedagogické a odborné činnosti se všestranně společensky angažoval. Odboj proti nacistickým okupantům zaplatil v Osvětimi životem. /J. S.
Soutěže
Moje slavná vila
Právě jsme soutěž Moje slavná vila ukončili a vylosovali výherce. Přesto Vám nabízíme možnost nesoutěžně se podělit o zajímavé fotografie z procházek a výletů!
Míjíte na svých každodenních cestách krásné nebo zajímavé domy? Všímáte si osobitých staveb ve svém okolí? Možná, že nevznikly pod rukama světoznámých architektů, možná nezměnily dějiny bydlení. Jsou-li ale součástí "genia loci" vaší ulice, čtvrti, nebo města, zaslouží si, aby se o nich vědělo.
Nové diskuse
- Vila Gustava Deutsche
- Vila Olomouc, Na Vozovce 5
- Zajímavosti
- vila ve Velkém Oseku
- VILA SPIRO Větřní
- Pomoc pri hledani mista, kde stoji vila
- Pomoc pri hledani mista, kde stoji vila
- Kde zjistím historii vily?
- Vila Josefa Bartoně
- vily v Bohumíně
- Suchardova vila v Nové Pace
- Vila v Kloboukách u Brna
- Mužík vs. socialistická architektura
- Vila F.Grohmanna
- Ludersdorfova vila