- Nacházíte se: Úvodní strana
- Vily
- Jihočeský
- Vila PhDr. Vlastislava Břízy
Vila PhDr. Vlastislava Břízy
FOIBOS - 1. 6. 22:00

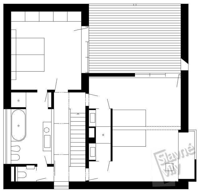
Objednavatel vily na pravém břehu Vltavy přednáší o mezinárodních bezpečnostních vazbách na Karlově univerzitě v Praze a zároveň působí v Českých Budějovicích jako podnikový manažer.
Objednavatel vily na pravém břehu Vltavy přednáší o mezinárodních bezpečnostních vazbách na Karlově univerzitě v Praze a zároveň působí v Českých Budějovicích jako podnikový manažer. Vyzná se také v historii moderní architektury, ve které ho upoutaly stavby Adolfa Loose nebo český rondokubismus. Když začal pro svou vilu u Vltavy hledat dobrého autora, propracoval se ke svým starším vrstevníkům a jihočeským rodákům z pražského ateliéru UM, Petru Uhlíkovi a Martinu Matiskovi. Architekti vilu pojali jako kostku, z jejíž sevřené hmoty někde něco vyřízli a někde k ní něco přidali. Dosáhli tak dojmu abstraktní barevné plastiky, jak to nedávno dobře postihl pojem „archisocha“, který pro vilu u Vltavy použila polská kritička architektury Marta Lesniakowska. Jeví-li se dům zvenku jako kompaktní a pevná hmota, po vstupu dovnitř se zážitek návštěvníka úplně změní. Místo hmoty tu totiž zavládne prostor, bohatost průhledů a odhmotněnost stěn ze skla a obarveného betonu. Rozdíly ve spodních úrovních místností v prostředním podlaží a ve vzdálenostech mezi jejich podlahou a stropem se tu nepochybně řídí příkladem Raumplanu Adolfa Loose, prostoru uspořádaného do kaskády, jaký bychom našli v Müllerově vile v Praze (1928-1930) nebo v Mollerově domě ve Vídni (1928-1930) od tohoto vídeňského architekta. Charakteristický rys Raumplanu spočívá v tom, že rozmanité výšky místností se odměřují od stropu hlavního obytného podlaží, nikoliv od země, jak to bývá obvyklé ve vilách anglické moderny z konce 19. století a jak se s tím setkáme například v Benešově vile v Sezimově Ústí. Loosův Raumplan bychom proto mohli pochopit jako „anglický dům vzhůru nohama“. Stavebník vily u Vltavy v Českých Budějovicích i jeho architekti tuto povahu Loosových prostorových koncepcí dobře vytušili a při navrhování jejího interiéru toho dokázali využít.
Soutěže
Moje slavná vila
Právě jsme soutěž Moje slavná vila ukončili a vylosovali výherce. Přesto Vám nabízíme možnost nesoutěžně se podělit o zajímavé fotografie z procházek a výletů!
Míjíte na svých každodenních cestách krásné nebo zajímavé domy? Všímáte si osobitých staveb ve svém okolí? Možná, že nevznikly pod rukama světoznámých architektů, možná nezměnily dějiny bydlení. Jsou-li ale součástí "genia loci" vaší ulice, čtvrti, nebo města, zaslouží si, aby se o nich vědělo.
Nové diskuse
- Vila Gustava Deutsche
- Vila Olomouc, Na Vozovce 5
- Zajímavosti
- vila ve Velkém Oseku
- VILA SPIRO Větřní
- Pomoc pri hledani mista, kde stoji vila
- Pomoc pri hledani mista, kde stoji vila
- Kde zjistím historii vily?
- Vila Josefa Bartoně
- vily v Bohumíně
- Suchardova vila v Nové Pace
- Vila v Kloboukách u Brna
- Mužík vs. socialistická architektura
- Vila F.Grohmanna
- Ludersdorfova vila

Slavné vily Jihočeského kraje







