- Nacházíte se: Úvodní strana
- Vily
- Jihomoravský
- Rodinný dům Olgy a Petra Houžvičkových
Rodinný dům Olgy a Petra Houžvičkových
FOIBOS - 16. 9. 22:00

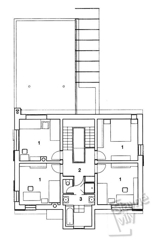
Dům na vinici, jak jej nazvali jeho autoři, se těší značné pozornosti a jeho publikování bylo provázeno i vyjádřením klientů.
Dům na vinici, jak jej nazvali jeho autoři, se těší značné pozornosti a jeho publikování bylo provázeno i vyjádřením klientů. Víme tak, že Petr Houžvička se chtěl usadit v rodném Podivíně a na venkově chtěla žít i jeho žena. Svůj náročný a hektický život soudkyně a advokáta zamýšleli vyvážit tradičním prostředím, jež by jim poskytlo bezpečné útočiště, založené „na dualitě soukromého – společenského, otevřeného – intimního, propojeného s krajinou – uzavřeného do sebe“. Manžel zpočátku nepovažoval otázku projektanta za důležitou, takže iniciativu převzala žena, jež se obrátila na architekty Hrůšu a Pelčáka. Po řadě konzultací vznikl dům, který je podle projektantů „zajímavý tím, že vlastně není nijak zajímavý, má sedlovou střechu s vlnitým eternitem a ústředním motivem je koupelna, která ještě s venkovním krbem tvoří jediné hmoty vystupující z kompaktní figury domu“. Velký význam přikládali projektanti rovněž jedinečné parcele s výhledem do krajiny a na městečko, kterou si spojili s verši Jana Skácela o jižní Moravě a dbali na to, aby „v hledání věcného stavění neublížili básníkovi“. V podstatě jde o jednoduchý kompoziční vzorec: podélně a příčně jsou půdorysné obdélníky obou podlaží a stejně tak jižní průčelí rozděleny na šest přibližně čtvercových jednotek, přičemž střed dispozice vyplňuje schodišťová hala se střešním světlíkem. Prostor spodního podlaží je směrem na sever rozšířen o garáž, komoru, šatnu a zádveří. Přízemí obsahuje obytné a společenské místnosti, do patra jsou situovány tři ložnice a pracovna. Výrazné rámy dveří vymezují funkce jednotlivých prostor, aniž by je ale uzavíraly, velká okna umožňují výhled do krajiny. /J. S.
Soutěže
Moje slavná vila
Právě jsme soutěž Moje slavná vila ukončili a vylosovali výherce. Přesto Vám nabízíme možnost nesoutěžně se podělit o zajímavé fotografie z procházek a výletů!
Míjíte na svých každodenních cestách krásné nebo zajímavé domy? Všímáte si osobitých staveb ve svém okolí? Možná, že nevznikly pod rukama světoznámých architektů, možná nezměnily dějiny bydlení. Jsou-li ale součástí "genia loci" vaší ulice, čtvrti, nebo města, zaslouží si, aby se o nich vědělo.
Nové diskuse
- Vila Gustava Deutsche
- Vila Olomouc, Na Vozovce 5
- Zajímavosti
- vila ve Velkém Oseku
- VILA SPIRO Větřní
- Pomoc pri hledani mista, kde stoji vila
- Pomoc pri hledani mista, kde stoji vila
- Kde zjistím historii vily?
- Vila Josefa Bartoně
- vily v Bohumíně
- Suchardova vila v Nové Pace
- Vila v Kloboukách u Brna
- Mužík vs. socialistická architektura
- Vila F.Grohmanna
- Ludersdorfova vila

Slavné vily Jihomoravského kraje






