- Nacházíte se: Úvodní strana
- Vily
- Moravskoslezský
- Vlastní vila Karla Gottwalda
Vlastní vila Karla Gottwalda
FOIBOS - 14. 3. 23:00

Karl Gottwald (1884–?) pocházel z dnešního Jeseníku, do Opavy přišel po ukončení vysokoškolských studií v roce 1909 a téměř dvě desetiletí působil v zemském stavebním úřadu.
Informace o vile
Mendlova 8/1707, Opava
Stavebník: Karl Gottwald
Architekt: Karl Gottwald
1929 - 1930
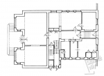
Karl Gottwald (1884–?) pocházel z dnešního Jeseníku, do Opavy přišel po ukončení vysokoškolských studií v roce 1909 a téměř dvě desetiletí působil v zemském stavebním úřadu. Když v roce 1927 s titulem vrchního stavebního rady odešel do penze, živil se jako samostatný architekt. Krátce nato si také postavil dům ve vilové kolonii na Kylešovském kopci. Jeho stylová východiska lze označit pojmy jako romantický regionalismus či barokní klasicismus vídeňského ražení. Toto pojetí bylo sice tradiční, Gottwald však při navrhování svého domova projevil značnou dávku originální prostorové představivosti a smyslu pro obyvatelnost. Páteř vnitřního prostoru tvoří nikoliv obvyklá schodišťová hala, nýbrž úspornější středový koridor a na něj kolmé dvojramenné schodiště. K chodbě přiléhala z jedné strany projekční kancelář s kreslírnou, z druhé pak kuchyně s příslušenstvím. Teprve za tuto pracovní zónu v jednopodlažním uličním traktu, do zvýšené zadní části domu umístil architekt obytné místnosti otevřené do zahrady. Prostředky reprezentace architekt soustředil do uličního průčelí, jež vybavil portálem s bohatou sochařskou výzdobou (hlava rozesmátého čerta, amoreti, psi, ptáci, hrozny vína) a neméně zdobnými pletenci okenních mříží. Okenní otvory jsou však poměrně malé a uzavřená, takřka utěsněná průčelní fronta manifestuje snahu o uchránění vnitřního prostoru jak před nepříznivými klimatickými vlivy severní strany, tak před rušivými účinky vnějšího světa. Hlavní úloha v exteriéru malebné stavby s valbovou střechou proto dle Gottwaldova záměru připadla zahradnímu průčelí. Ve snaze o jeho maximální otevřenost do vnějšího prostoru v něm architekt přes celou šířku posadil balkon a přízemí plasticky promodeloval postranními rizality. /JV
Soutěže
Moje slavná vila
Právě jsme soutěž Moje slavná vila ukončili a vylosovali výherce. Přesto Vám nabízíme možnost nesoutěžně se podělit o zajímavé fotografie z procházek a výletů!
Míjíte na svých každodenních cestách krásné nebo zajímavé domy? Všímáte si osobitých staveb ve svém okolí? Možná, že nevznikly pod rukama světoznámých architektů, možná nezměnily dějiny bydlení. Jsou-li ale součástí "genia loci" vaší ulice, čtvrti, nebo města, zaslouží si, aby se o nich vědělo.
Nové diskuse
- Vila Gustava Deutsche
- Vila Olomouc, Na Vozovce 5
- Zajímavosti
- vila ve Velkém Oseku
- VILA SPIRO Větřní
- Pomoc pri hledani mista, kde stoji vila
- Pomoc pri hledani mista, kde stoji vila
- Kde zjistím historii vily?
- Vila Josefa Bartoně
- vily v Bohumíně
- Suchardova vila v Nové Pace
- Vila v Kloboukách u Brna
- Mužík vs. socialistická architektura
- Vila F.Grohmanna
- Ludersdorfova vila

Slavné vily Moravskoslezského kraje





