- Nacházíte se: Úvodní strana
- Vily
- Zlínský
- Vila Jiřího Hanzelky
Vila Jiřího Hanzelky
FOIBOS - 23. 7. 22:00

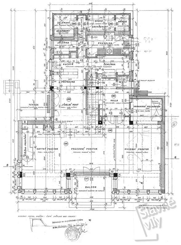
Vila Jiřího Hanzelky (1920–2003) vyrostla na Nivách v sousedství vily Zikmundovy.
Vila Jiřího Hanzelky (1920–2003) vyrostla na Nivách v sousedství vily Zikmundovy. I přes řadu shodných prvků je k ní kontrastní. Jedná se o téměř symetrickou prostorovou kompozici pyramidálně uspořádaných hmot, která svému prostředí spíše dominuje, než aby s ním splývala. Prostorové řešení domu předurčila konfigurace terénu. Vila využívá svahu pro stupňovitou dispozici se spojitým hlavním obytným prostorem, okolní terén je pomocí násypů zvlněn tak, aby umožňoval spojení interiéru domu se zahradou v několika úrovních. Na jihu přímé spojení s terénem chybí (podobně jako u obou dalších vil Z. Plesníka), místo arkýřů Zikmundovy a Liškovy vily je zde ale použit motiv inverzní – polozapuštěný balkon (lodžie), který ukončuje prostorovou kaskádu domu nad zahradou. Velkorysý obytný prostor je výškově členěn, jídelní kout se nachází o několik stupňů výše než odpočinkový, pracovní a hudební prostor. Raumplanová dispozice i klasické trojdílné členění průčelí spojuje vilu s tvorbou Adolfa Loose, řada paralel pak s francouzským průkopníkem železobetonu Augustem Perretem. Monumentální uspořádání domu bylo ale odvozeno ještě z jiného zdroje. Jiří Hanzelka byl vášnivým hráčem na varhany a dům byl mimo jiné dimenzován podle vlnových délek tónů varhan, které do jeho domu zapůjčil profesor Jiří Reinberger z Prahy. Hanzelkova rodina se do vily nastěhovala v roce 1956, ale již v roce 1958, před druhou cestou H&Z do zahraničí, přesídlila do Prahy, blíže rodičům Hanzelkovy ženy Hany. Vila byla předána československému státu s podmínkou využití pro potřeby dětí výměnou za poskytnutí prostředků na šestiletou cestu do Asie a Oceánie uskutečněnou v roce 1959 (polovina ceny domu přitom byla J. Hanzelkovi kompenzována M. Zikmundem). Nová funkce mateřské školy a později dětského rehabilitačního stacionáře přinesla řadu stavebních zásahů a přístaveb a vedla k postupnému znehodnocení Plesníkova díla. /PV
Soutěže
Moje slavná vila
Právě jsme soutěž Moje slavná vila ukončili a vylosovali výherce. Přesto Vám nabízíme možnost nesoutěžně se podělit o zajímavé fotografie z procházek a výletů!
Míjíte na svých každodenních cestách krásné nebo zajímavé domy? Všímáte si osobitých staveb ve svém okolí? Možná, že nevznikly pod rukama světoznámých architektů, možná nezměnily dějiny bydlení. Jsou-li ale součástí "genia loci" vaší ulice, čtvrti, nebo města, zaslouží si, aby se o nich vědělo.
Nové diskuse
- Vila Gustava Deutsche
- Vila Olomouc, Na Vozovce 5
- Zajímavosti
- vila ve Velkém Oseku
- VILA SPIRO Větřní
- Pomoc pri hledani mista, kde stoji vila
- Pomoc pri hledani mista, kde stoji vila
- Kde zjistím historii vily?
- Vila Josefa Bartoně
- vily v Bohumíně
- Suchardova vila v Nové Pace
- Vila v Kloboukách u Brna
- Mužík vs. socialistická architektura
- Vila F.Grohmanna
- Ludersdorfova vila

Slavné vily Zlínského kraje









